Your search results

Area edificabile per realizzare hotel, residence, uffici, commerciale

|  4800 mq | Classe energetica G

    2971             

Città:
Provincia:

Indirizzo: ,
Tipologia: ,
Tipo di contratto: 

Descrizione

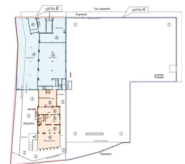
In posizione estremamente privilegiata per la vicinanza all’aeroporto di Milano Linate e alla fermata della metropolitana inaugurata a novembre 2022 proponiamo un’interessante operazione immobiliare in cui sono ammesse le seguenti destinazioni: hotel, residence (ad esempio residenze universitarie), uffici, commerciale. Non è possibile realizzare destinazioni abitative tradizionali. L’operazione è composta da un edificio esistente con una superficie di circa 2.550 mq ed un’area sulla quale è possibile realizzare altri 2.250 mq di slp. La superficie dell’area scoperta è di complessivi 3.500 mq ca. E’ possibile mantenere gli stessi volumi anche demolendo l’edificio esistente e realizzandone uno totalmente nuovo.

Property Id : 38626
Superficie: 4,800 m2
Locali: 100
APE: 360 kWh/m²a
Classe energetica: G
Riferimento: 202320
Piano: 0
Totale Piani: 0
Data ultimo aggiornamento: 2026-04-10
Other Features
Ascensore
Planimetria 1
Planimetria 1

Contattaci

Contattaci

Compare Listings