Your search results

Milano North of Loreto affascinante Loft su due livelli

€ 375.000 |  80 mq | Classe energetica A1

    486             

Città:
Provincia:

Indirizzo: Padova, 38/A
Tipologia: ,
Tipo di contratto: 

Descrizione

Milano Loreto – Un’opportunità imperdibile!
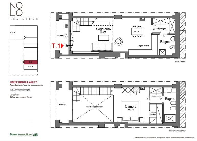
Situato in una zona servitissima, questo splendido loft su due livelli rappresenta la soluzione ideale per chi cerca stile e funzionalità. L’appartamento è inserito in un contesto di recupero totale di un edificio di archeologia industriale realizzato nel 2019 con un’elevatissima qualità costruttiva ed, è composto da un ampio soggiorno con altezza di 5.8 metri tutto a vetrate, cucina a vista, bagno di servizio al paino terra ; una suggestiva scala di design conduce alla zona notte, composta da una spaziosa camera da letto, una cabina armadio e un ulteriore bagno. La proprietà include inoltre un posto auto meccanizzato, compatibile anche con SUV. E’ possibile acquistare anche una cantina al piano terra al prezzo di € 10.000. Prezzo: € 375.000,0: Box € 22.000,00 Contattaci subito per maggiori informazioni e per prenotare una visita!

Property Id : 61117
Prezzo: € 375.000
Superficie: 80 m2
Locali: 2
APE: 73,35 kWh/m²a
Classe energetica: A1
Riscaldamento: Centralizzato gest. autonoma
Riferimento: 202645
Piano: 0
Totale Piani: 4
Box: Singolo
Giardino di proprietà (mq): 4
Consegna: AL ROGITO NOTARILE
Data ultimo aggiornamento: 2026-03-21
Planimetria 1
Planimetria 1

Contattaci

Contattaci

Compare Listings